省エネ基準適合住宅・耐震等級3・火災地震保険料半額・手数料無

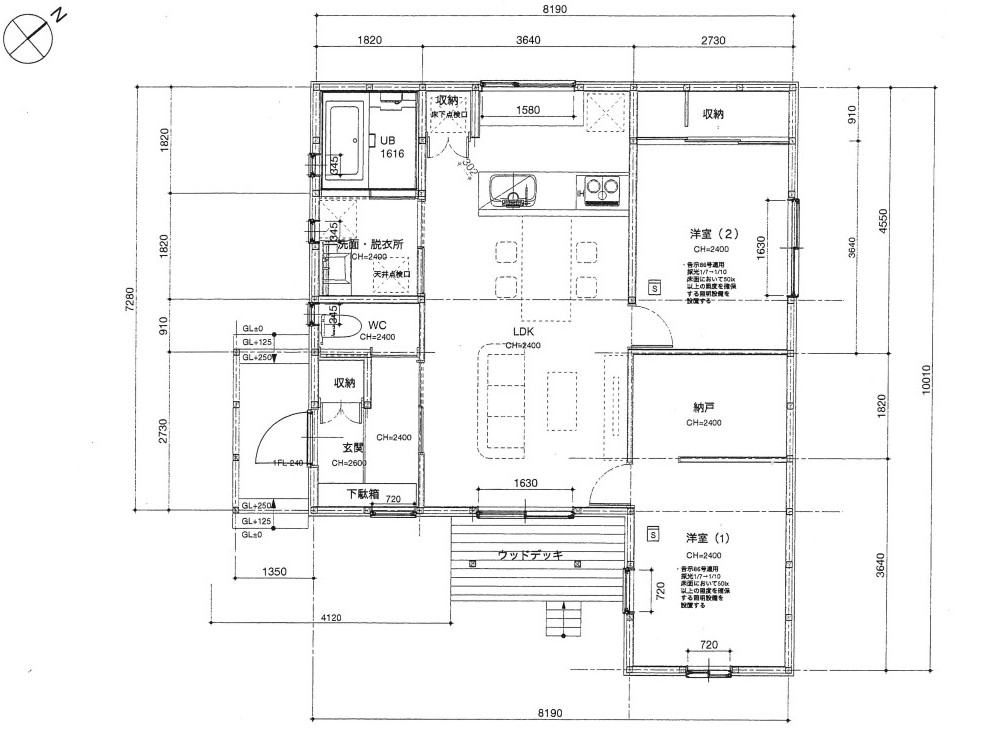
建物/新築住宅新築平屋戸建(2LDK+S)
価格
3,883万円
最寄り交通機関
二里木バス停 徒歩3分
所在地
熊本市北区龍田8丁目9
土地面積
166.43m2 (50.34坪)
建物面積
67.06m2 (20.28坪)
間取り
2LDK+S
構造/階数
木造1階建
築年月
2025年3月新築
学校区
熊本市立龍田小学校、中学校校区
引き渡し
取引態様
売主
備考・コメント
地盤調査(保証期間20年)
耐震性能(耐震等級3)
白蟻対策(保証期間10年)
断熱性能(火災保険料半額)
外装材(ガルバニウム鋼板)
特注家具・建具
見学できます。お電話ください。096-355-6428
現地図
※現地につきましては現況優先となります。詳細はお気軽にお問い合せください。












